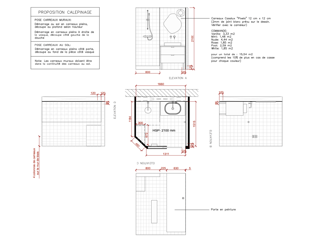
Pour ce petit projet dans un appartement en plein coeur de l’hyper centre toulousain, mes clients souhaitaient transformer une buanderie en salle de bain pour leurs enfants. Ils souhaitaient quelque chose de coloré, qui corresponde avec le reste de l’appartement, mais qui soit aussi pratique. Les contraintes : la taille de la pièce et la tuyauterie longeant les murs. Très petite, il fallait penser tout au millimètre près et anticiper les soucis potentiels lors des travaux. Ensuite, les clients souhaitaient transférer l’espace buanderie dans leur grande salle de bain attenante à la suite parentale. Il s’agissait là d’une rénovation partielle pour intégrer les machines, du rangement, séchage mais aussi moderniser la salle de bain par touches.
La Salle de bain des enfants




La Salle de Bain Parentale / buanderie



Photographies finales
Photographies de l’existant















