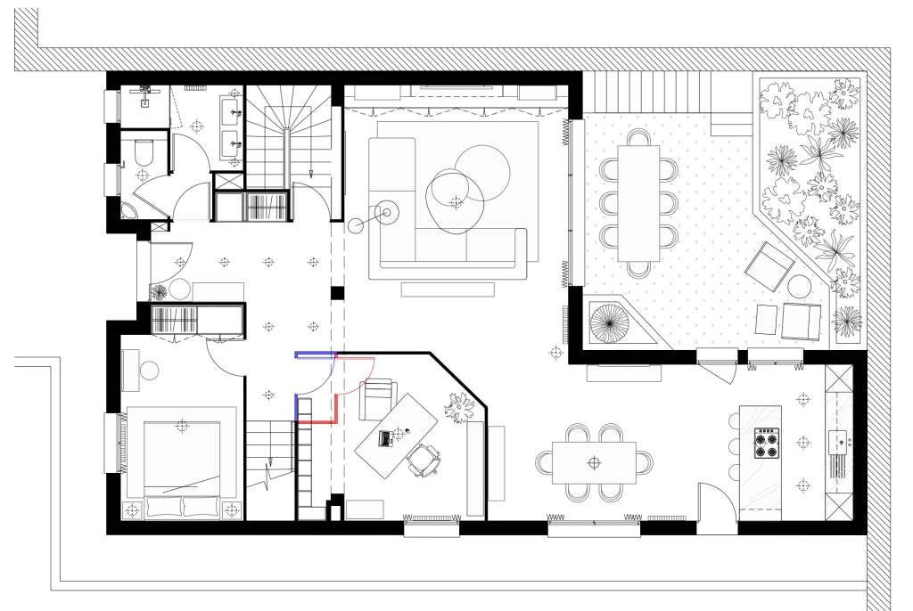
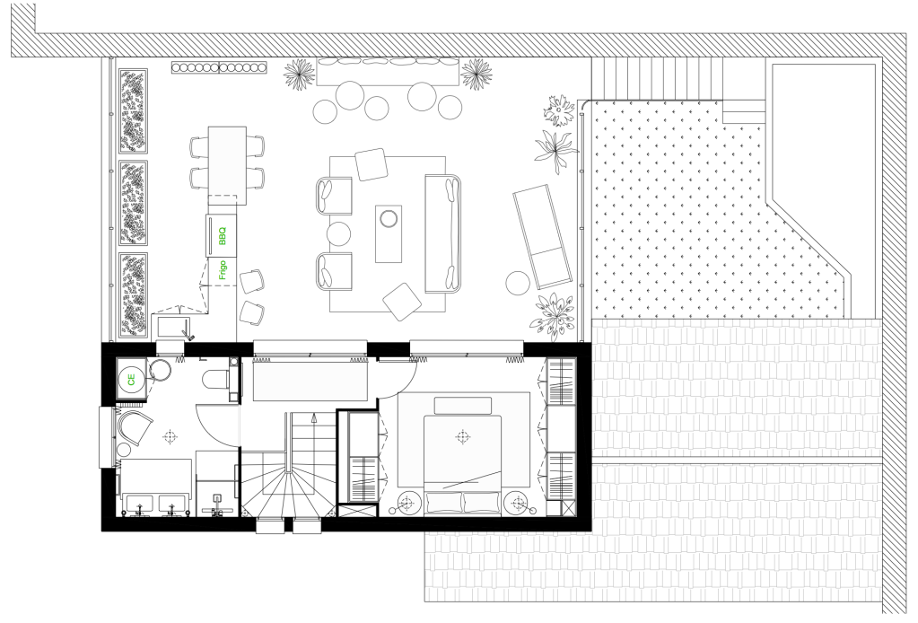
Cette chartreuse toulousaine de 130 m2 avec deux grandes terrasses dont une en rooftop, date des années 2000. Les clients sont attirés par le design minimaliste, avec des placards aux poignées cachées, des surfaces lisses. Cependant, bien amenée, ils étaient enclins à apporter de la couleur dans la cuisine qui est une pièce sombre, et dans les autres pièces plutôt par touches. La contrainte: le plan de travail en pierre noire, certaines pièces de mobilier à garder et un carreau aux motifs Caribéens à inclure dans la salle de bain.


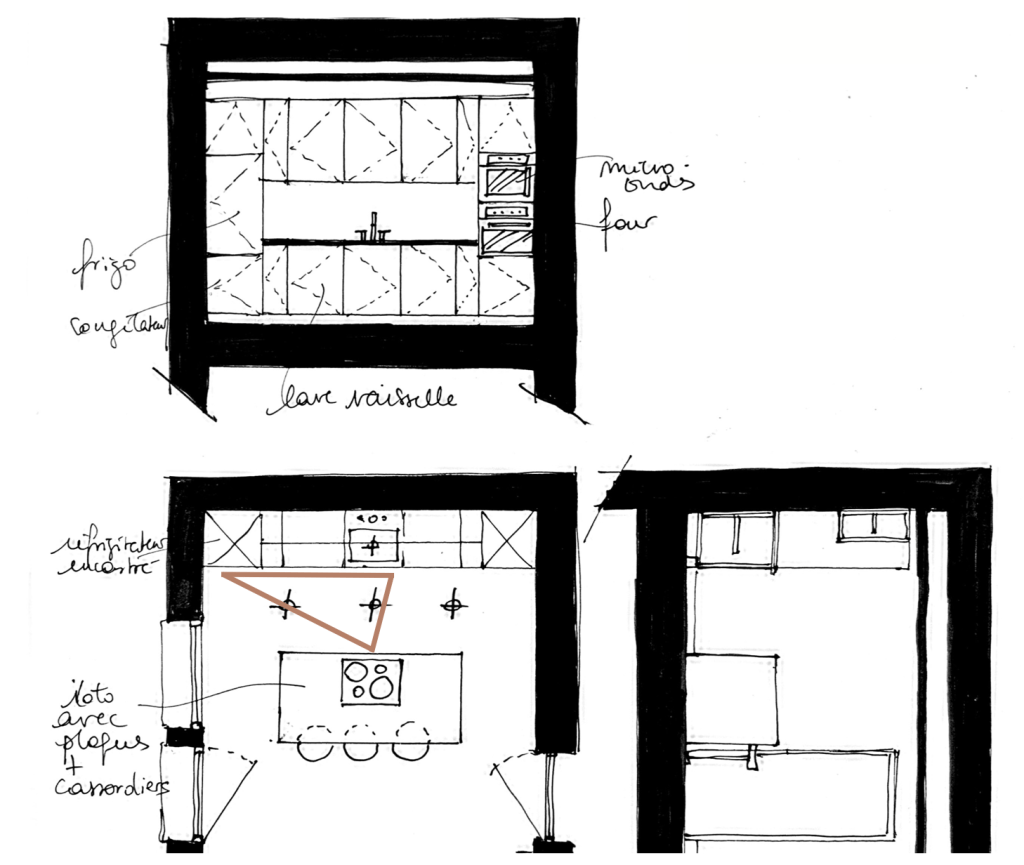
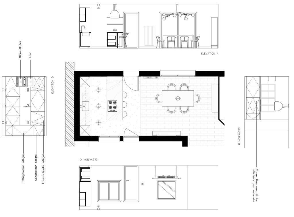
La Cuisine







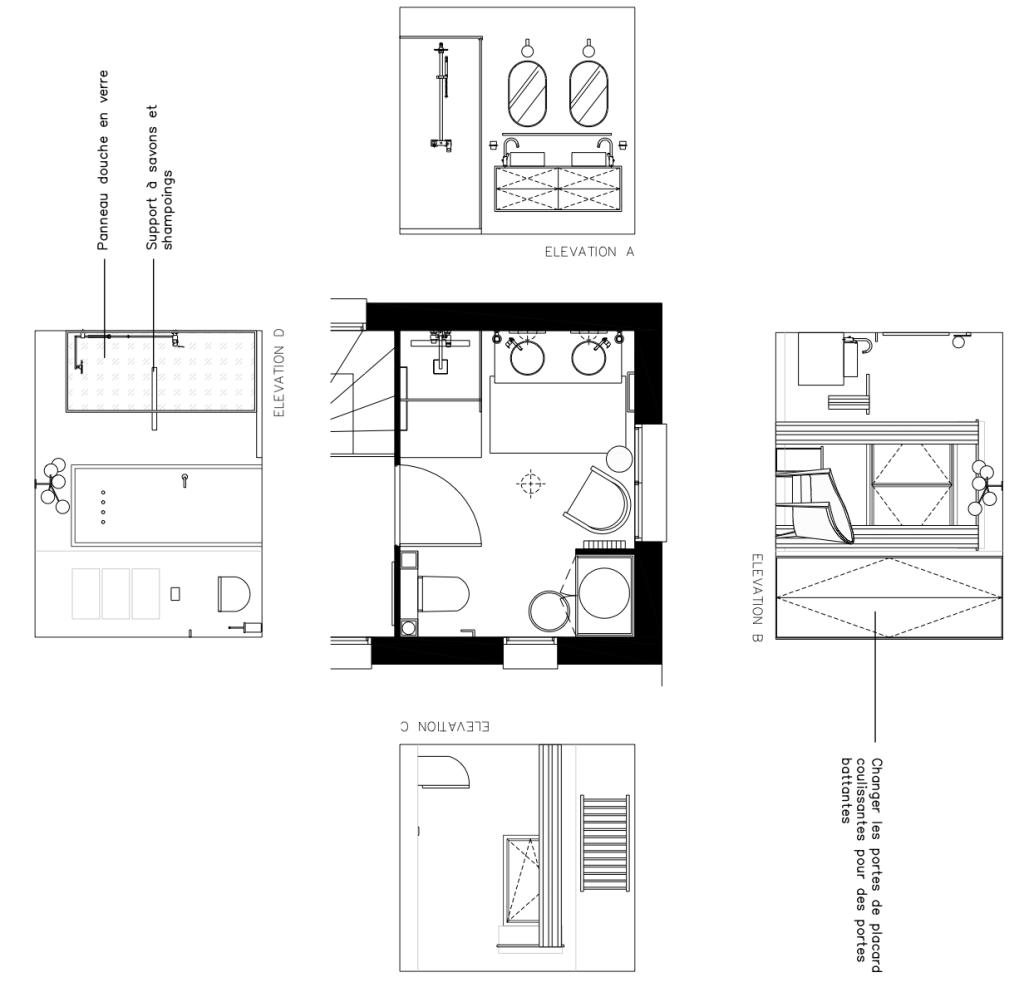
La Salle de Bain



Le Salon


La Chambre Parentale

Photographies finales
Photographies de l’existant












