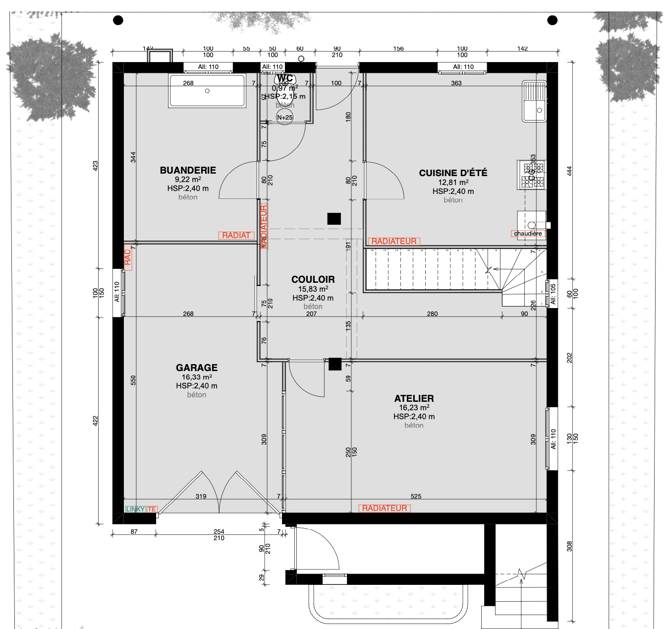
Erigée sur 3 niveaux, cette maison de 175 m2 construite dans les années 60 et achetée en Viager est vraiment « dans son jus ». Une partie de la conception a été faite en attendant la possibilité de réaliser le projet concrètement. L’accès se faisait par le premier étage avec des escaliers extérieurs et amenaient aux pièces de vie ainsi qu’à deux chambres. Le rez-de-chaussée est ainsi dédié à l’époque à l’espace garage, stockage, cuisine secondaire, buanderie et atelier. Au dernier étage, des combles à l’accès compliqué ne sont absolument pas isolés ni aménagés. Mon intervention, couplée à celle de l’Architecte DPLG Adèle Schrive pour l’établissement du permis de construire, a consisté en plusieurs choses:
– Mettre tous les escaliers aux normes
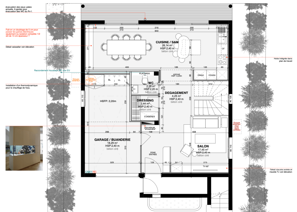
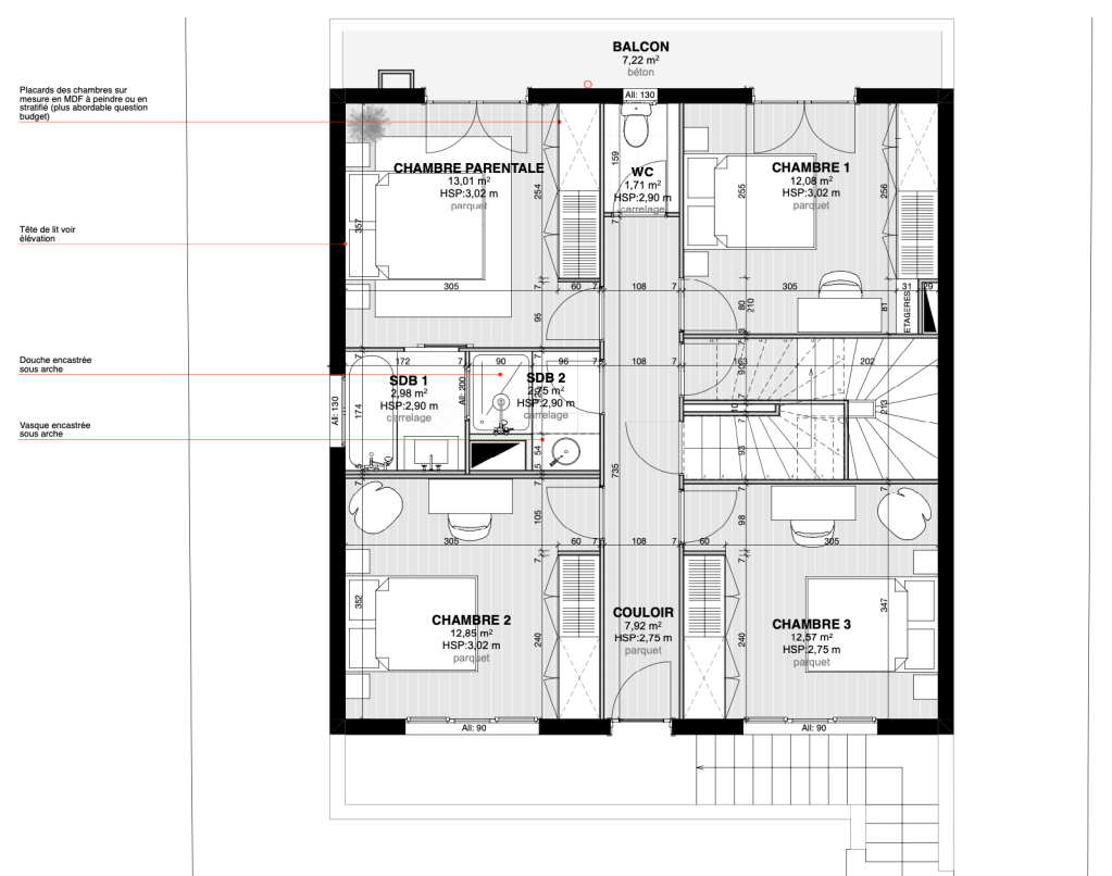
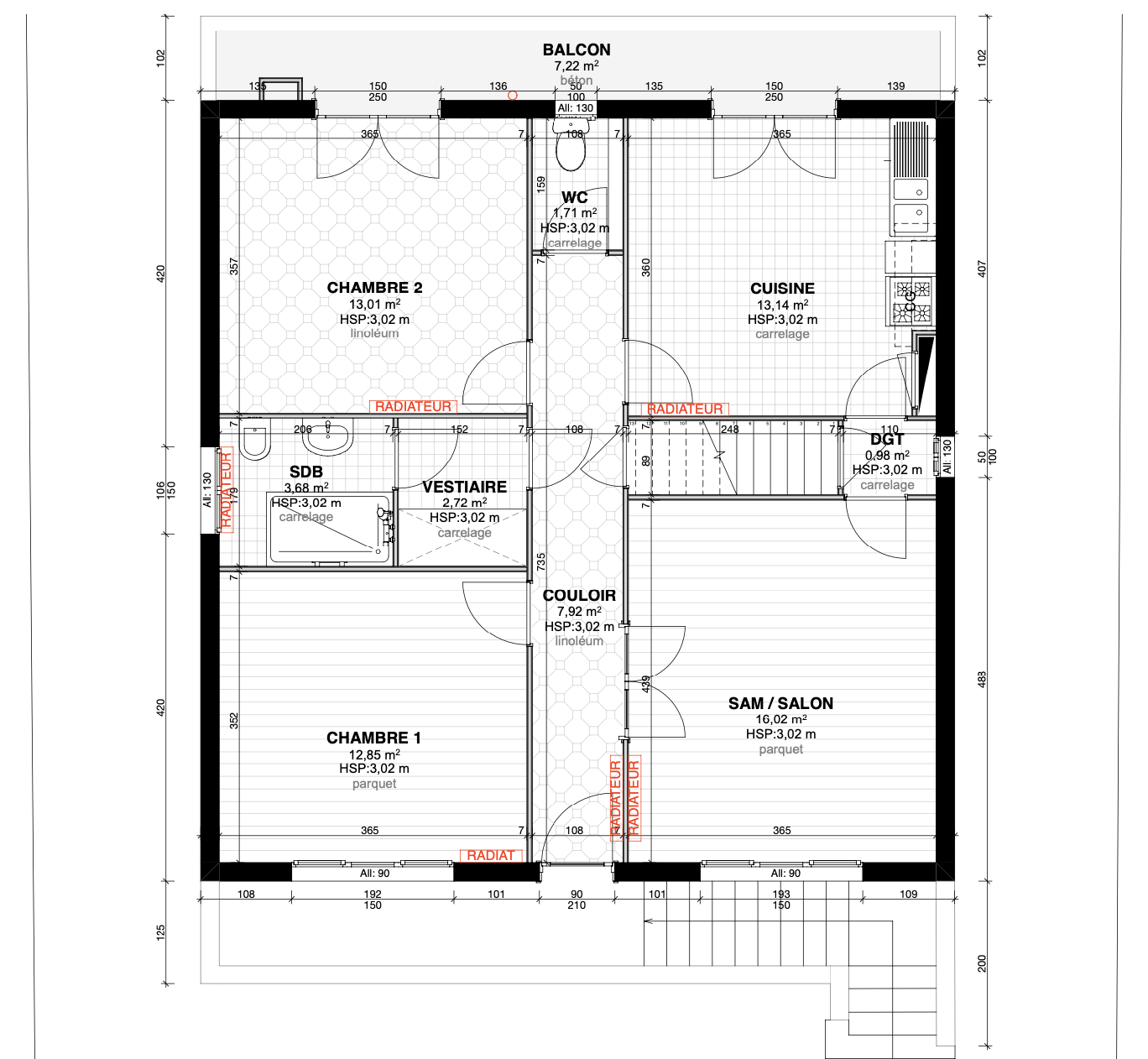
– Implanter les pièces de vie au rez-de-chaussée et 4 chambres à l’étage
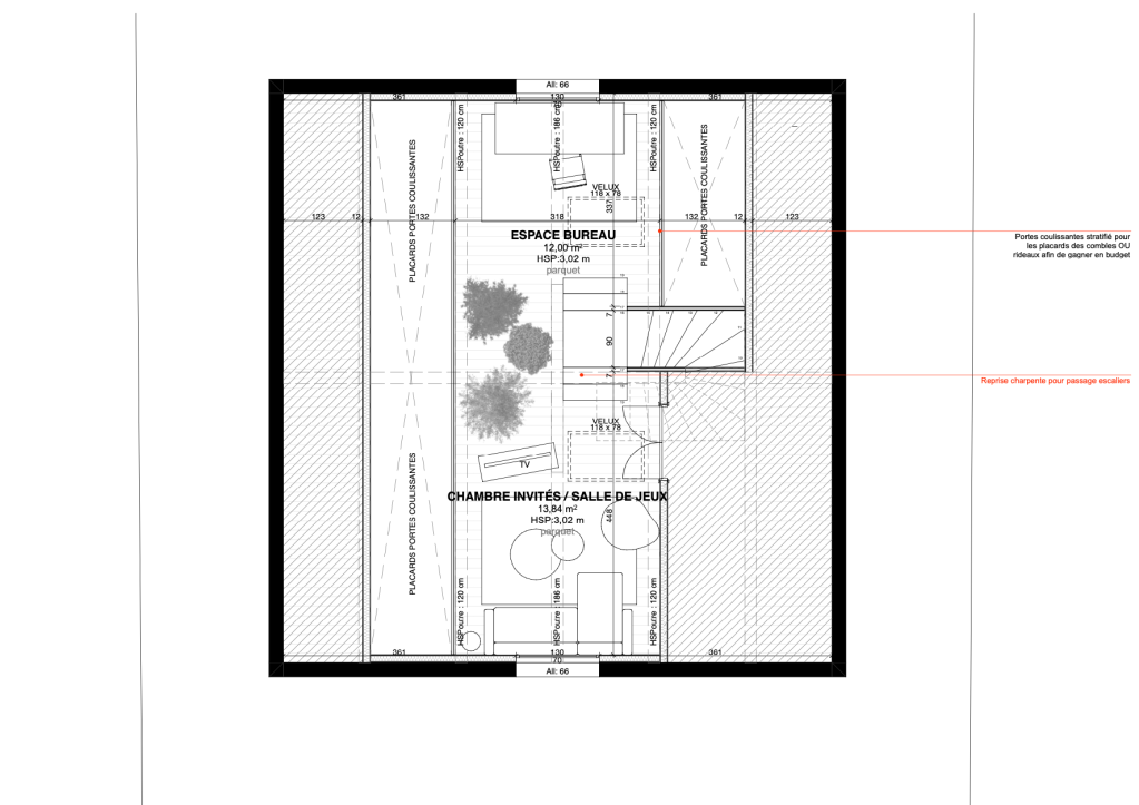
– Aménager les combles en prenant en compte la structure de la charpente
– Garder le garage, créer une entrée avec rangements, insérer un espace buanderie
– Changer le chauffage au gaz par une pompe à chaleur et installer un gainable
– Apporter de la luminosité au rez-de-chaussée bas de plafond
– Proposer un design coloré, contemporain avec des éléments mid century moderne et avec des touches tropicales




Plans état des lieux et démolition
Pour vous donner une idée de la maison avant la proposition de projet, voici les plans avant et les plans démolition montrant les cloisons à déposer, les ouvertures à faire, le déplacement et changement des escaliers, etc.






L’entrée / salon




La Cuisine / Salle à Manger



La Suite Parentale



Chambres des enfants et salle de bain



Aménagement des combles


Photographies de l’existant















