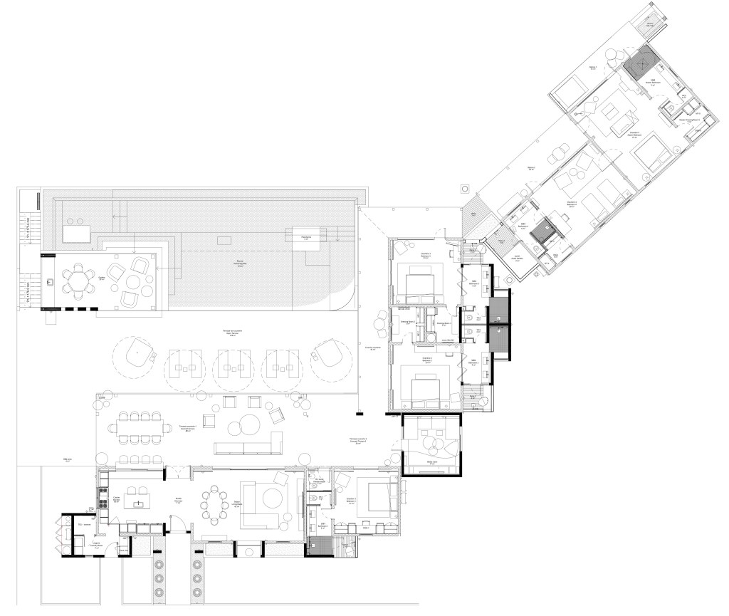
Ce gros projet de rénovation et extension a été réalisé avec le Cabinet d’Architecture Atelier 111, à Saint-Martin, dans les Caraïbes. Cette villa s’étend sur un seul niveau et possède cinq chambres avec vue, une salle de télévision, une grande cuisine ouverte sur le salon/salle à manger. Les extérieurs sont tout aussi impressionnants avec la piscine, le gazebo, la douche extérieure, le jacuzzi… Le client, un Américain, aux origines africaines, nous a demandé de travailler sur le thème « africain moderne » pour cette bâtisse vouée à être louée durant les saisons touristiques.
Le projet est trop grand pour tout partager ici, mais je vous présente quelques extraits détaillés.

Les Espaces de Vie
Quand on parle de thème africain moderne, on voit du bois, beaucoup de bois, et des motifs végétaux, des masques, de la pierre. Cependant, il fallait que la villa garde un look luxueux et contemporain, mais surtout que tout soit confortable : le canapé, les lits… C’était vraiment un pré-requis du client.
Le salon et la salle à manger possèdent deux meubles dessinés sur mesure et envoyés en fabrication en France Métropolitaine chez La Fabrique Martinelli. Le canapé confortable et douillet de Roche Bobois, les tables gigognes par Ethnicraft, et le tapis de Toulemonde Bochart.

La Salle « Cinéma »
La petite pièce qui sert de salle de télévision se voulait optimum niveau son et confort. C’est ainsi que j’ai opté pour un canapé sur mesure de The Sofa and Chair Company, un tapis « fluffy », un meuble TV sur mesure afin d’exposer des oeuvres d’art, la sono, et un revêtement en liège signé Gencork qui permet d’améliorer la qualité du son tout en gardant un design original et dans le thème.

Les Chambres
Chaque chambre est accessible grâce à des baies vitrées, a sa propre salle de bain avec douche extérieure, sa télévision, son bureau. Une des chambres possède un meuble TV/bureau réalisé sur mesure pour la pièce, et la chambre parentale un espace salon, jacuzzi extérieur et bain de soleil.






Photographies des Espaces Extérieurs
En tant qu’Architecte d’Intérieur, je me suis aussi occupée de proposer le mobilier pour les espaces extérieurs, de dessiner la grille perforée du gazebo, d’imaginer les fontaines de l’entrée et leur système de fonctionnement pour faire monter l’eau dans les pots. Les beaux fauteuils et magnifiques tables de Manutti, les parasols à ouverture automatique de Royal Botania, un immense canapé en métal de Restauration Hardware, sont des marques très appréciées des clients.



































