
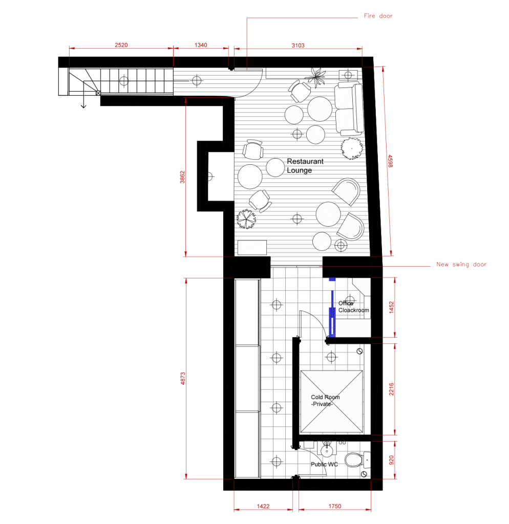
Dans le fameux quartier de Brick Lane à Londres est né un restaurant éphémère bistronomique entre 2018 et 2020. L’ancien propriétaire était spécialisé dans la vente de kebabs à emporter et il fallait entièrement rénover les lieux, repenser les espaces, et mettre aux normes le nouveau restaurant qui allait prendre sa place. Vu l’espace exigü c’était un challenge : intégrer le plus de places assises possibles, une arrière cuisine efficace, un bar spacieux et élégant pour accueillir la clientèle. Le nouveau concept était basé sur le burger et des sauces originales faites maison. C’est la ligne directrice que j’ai prise lors de la conception du design.


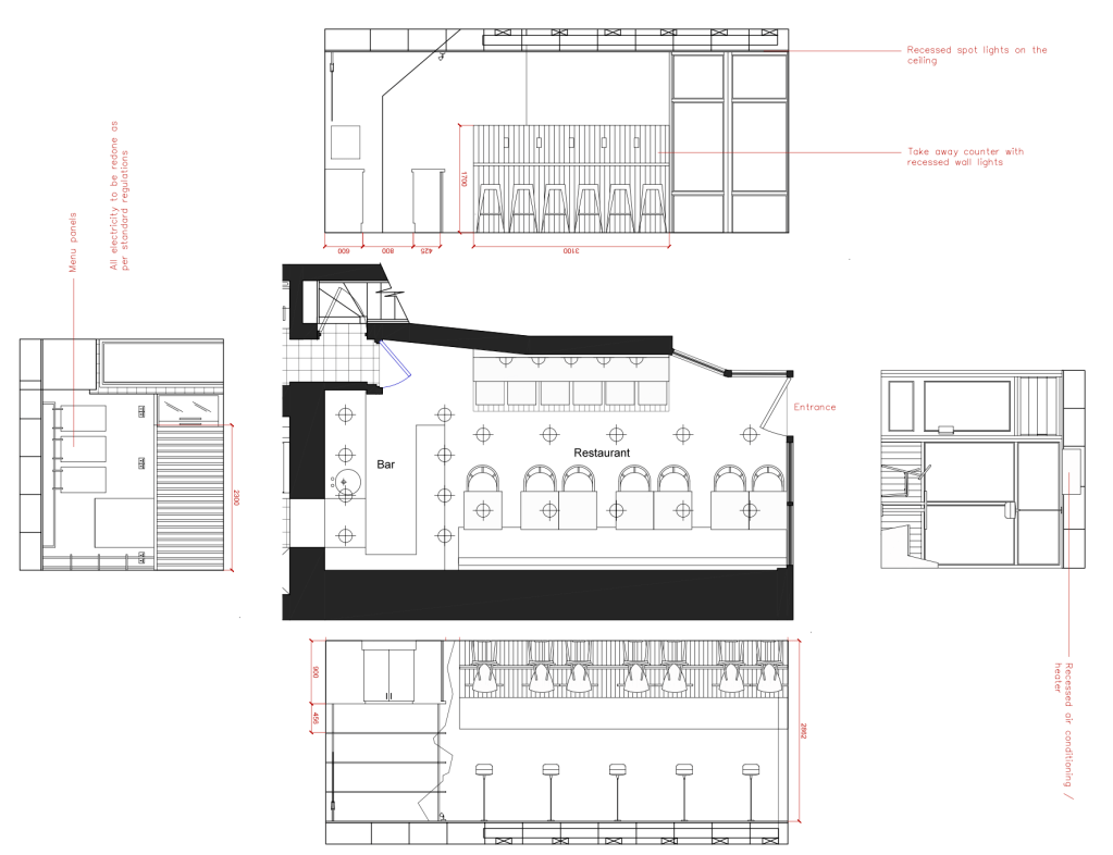
La devanture

Le restaurant





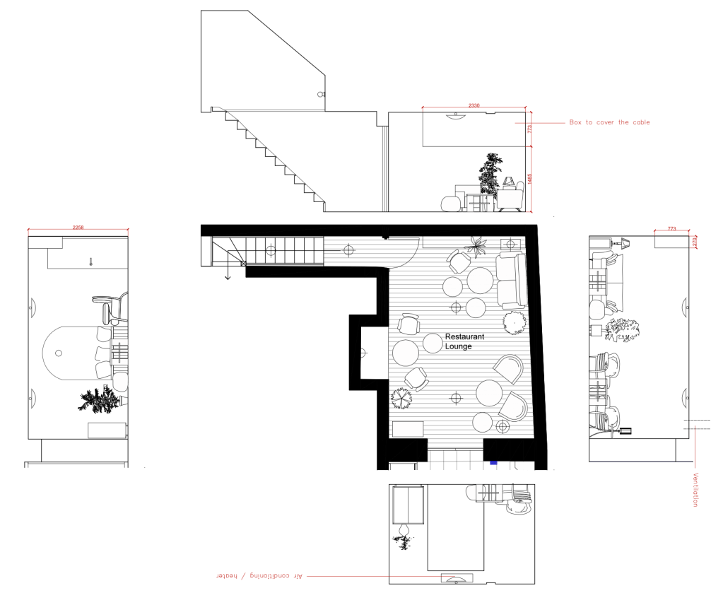
Espace Lounge



Photographies de l’existant



Photographies de la réalisation finale










